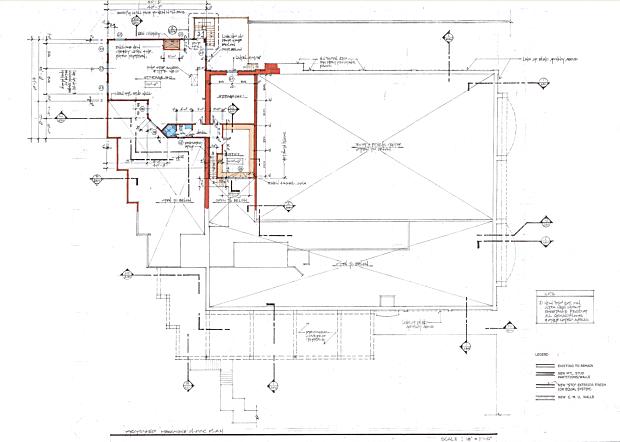
Performed full exterior renovation by adding thermo insulation beneath new stucco, and created new canopies over main entrances at the front façade of existing restaurant.
| Main Floor | Rehabilitation of the dining and service areas in the existing restaurant space. Renovation of main entrance of existing restaurant by adding a vestibule. Addition of banquet hall with bar, full-service kitchen and women’s and men’s restrooms (handicapped accessible). Addition of a new covered outdoor café terrace. |
| Upper Floor | Added second level above banquet hall for accounting offices, common bathroom and storage rooms. |














